Skip to Main Content
Create a Website Account
- Manage notification subscriptions, save form progress and more.
Website Sign In
Search
Government
Services
Business
How Do I...
Home
Government
Departments
Assessor's Office
Forms & Resources
Forms & Resources
Address Change or Correction (PDF)
BC-2 (PDF)
BC-2A (PDF)
BC-2B (PDF)
Complaint of Real Property Assessment (PDF)
Excavation Into Town Road (PDF)
Freedom of Information (PDF)
GC-2 (PDF)
GC-2A (PDF)
GC-2B (PDF)
Optional Income Verification Program (PDF)
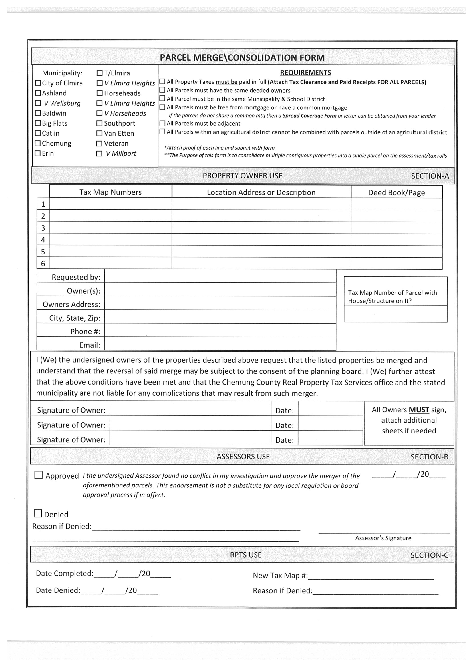
Parcel Merge-Consollidation Form
Peddlers Permit Application (PDF)
Quick Links
Southern Tier Central - GIS Portal
Grievance Procedures
How to File for Small Claims Hearing
Changes to STAR Exemption
Real Property General Instructions
Bingo License
STAR (School Tax Relief) Exemption Forms
Real Property Tax Exemption for Commercial, Business or Industrial
Partial Real Property Tax Exemption for Senior Citizens
Code Enforcement Forms
View All
/QuickLinks.aspx
Changes to STAR Exemption
Forms & Resources
Agendas & Minutes
Online tax Payments
Licenses & Fees
Budget
Directions & Maps
Departments
Government Websites by
CivicPlus®
Loading
Loading
Arrow Left
Arrow Right
[]
Slideshow Left Arrow
Slideshow Right Arrow